Sold
$224,900
3 beds 2.0 baths 1,485 SqFt 5.5 Acres

Country Home W/ Rhine Lake Access For Sale in Finlayson MN

11849 Appaloosa Pass, Finlayson, Minnesota 55735 | Pine County


Property Details

Home on 5.5 Acres w/ Creek Access For Sale in Pine County MN

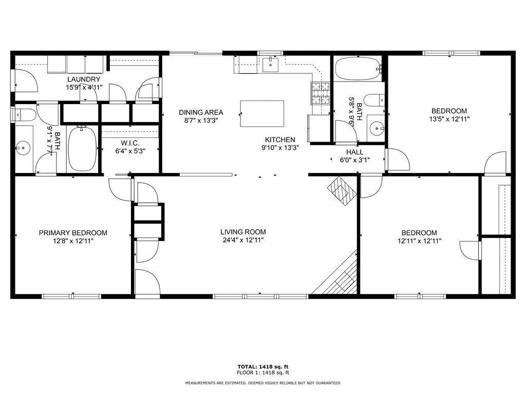
This 3 bedroom/2 bath home is located on a wooded 5.5 acre corner lot with a pool and lake access! This 2002-built manufactured home features an open living/kitchen/dining area with updated vinyl flooring throughout. The living room has a wood burning stove and large picture window overlooking the yard. The kitchen/dining room has a center island, lots of cabinets, and patio doors leading to a large deck. One end of the home has the primary bedroom with walk-in closet, walk-thru full bath, laundry/utility room, and storage space. The opposite end has two additional bedrooms (one currently used as an office w/ built-in desk/cabinets) and full bath.

3 Bedroom Home w/ Deck & Above Ground Pool For Sale

Outside the home is a two-tier deck spanning the back of the home with an above ground pool. There is a barn red shed with chicken coop and pen, enclosed storage, and open storage. The vegetable garden area has 8 separated beds and high fencing. This parcel also includes deeded access to a shared lot on Rhine Lake and another on Rhine Creek. Great location near the Pine Lake chain, Munger & Soo Line trails, and a short drive to Mille Lacs!

Directions to 11849 Appaloosa Pass, Finlayson, MN 55735

  • From I-35 take exit #195 (Askov/Finlayson) and head West on Mn-23 to T. North 1.5 miles and then West to continue on MN-18 8.5 miles to Rhine Lake Road, North/Right to Appaloosa Pass, right to home on the left. Sign is up.
  • Click HERE for a map to the country home for sale located at 1849 Appaloosa Pass

Additional Information

  • Bedrooms: 3
  • Bathrooms: 2
  • Utilities on site: propane, well, septic
  • Acreage: 5.5
  • Finished Sq Ft: 1,485
  • School District: Hinckley-Finlayson #2165
  • 2024 Taxes: $1,378
  • Address: 11849 Appaloosa Pass, Finlayson, MN 55735
  • Listing Agent: Kelly Frisch 763-300-6334

About Finlayson, MN

Finlayson, Minnesota is conveniently located along MN State Hwy 18 between Interstate 35 and Highway 65. For recreational opportunities, Finlayson is home to Banning State Park, the Pine Lake chain and other area lakes. The Munger State Trail, Kettle River and Pine River all run through.

Finlayson is home to Petry’s Bait for groceries, gas (including non-oxy), bait, and a selection of local clothing and gifts. Crazy Mary’s Café and the Finlayson Municipal are local favorites for food, drinks, and off-sale. A short drive North (to Moose Lake) or South (to Sandstone) will provide all the additional necessities you need – a full grocery store, restaurants, banking, convenience stores, hardwood stores, a hospital and clinics, and more. A half hour West on MN-18 will bring you to the Eastern shores of Mille Lacs

School district 2165 serves Finlayson, with grades K-6 attending  Finlayson Elementary School and high school students going to Hinckley-Finlayson High School.

About Rhine Lake

Rhine Lake is located in Pine County northwest of Finlayson. It is approximately 116 acres with 2 miles of shoreline, and 8± feet at its deepest point. Anglers can expect to find a variety of fish including black bullhead, black crappie, bluegill, brown bullhead, northern pike, pumpkinseed, yellow bullhead and yellow perch.

For more information, contact Kelly Frisch, United Country Real Estate

For more information on this home w/ lake access for sale in Finlayson, Minnesota, contact Kelly Frisch with United Country Real Estate: Minnesota Properties at 763-300-6334 or via email. Find Kelly on Facebook

What is My Property Worth?

Curious what your home, cabin, waterfront property, or land is worth? Click HERE to find out! 

*****

Find More Listings Offered By

United Country Real Estate Minnesota Properties HERE

Twin Cities MLS# 6536545 | Duluth LSAR# 6113667 | Pine County, Minnesota

Property Features

  • Country Home For Sale
  • 3 Bedrooms, 5.5 Acres For Sale
  • Tiered Deck, Above Ground Pool
  • Chicken Coop, Lake Access
  • School District 2165
  • Pine County, MN
  • Finlayson, Minnesota
  • Country Homes
  • Lakefront Property
  • Recreational Property
  • Riverfront Property
  • Fishing
  • Call Kelly (320) 245-2502

Property Details

Street Address:

  11849 Appaloosa Pass

City:

  Finlayson

State:

  Minnesota

Postal Code:

  55735

Country:

  United States

County:

  Pine

Listing ID:

  22200-24148

Map View