Property Details
Welcome home to modern country living in this beautiful newly built 3-bedroom, 2-bath home perfectly situated on a 1-acre lot just off Highway 5 in peaceful Wasola, Missouri. Designed with both comfort and functionality in mind, this home blends contemporary finishes with the relaxed charm of Ozark living.
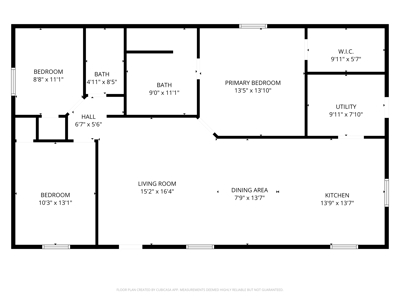
Step inside to an inviting open-concept floor plan that connects the kitchen, dining, and living spaces — perfect for entertaining or gathering with family. The spacious kitchen features plenty of counter space and cabinetry, while the living area provides a bright, welcoming atmosphere. The primary suite offers a private retreat with a custom walk-in shower, adding a touch of luxury to your everyday routine.
With one acre of open land, there’s ample room to enjoy the outdoors without the upkeep of a large property. Create your own garden, add a workshop, or simply relax and enjoy the views of the surrounding countryside. The home’s convenient location just off Highway 5 means easy access to nearby small towns, schools, and outdoor recreation areas — including the lakes, rivers, and trails that make the Ozarks an outdoor lover’s paradise.
Whether you’re a first-time buyer, downsizing, or looking for a peaceful getaway, this Wasola new build offers modern comfort, rural charm, and space to make it your own.
The new home can be purchased on 34 acres, on 1 acre, or with the additional rental home and full 35 acres for those seeking extra space and income potential.
Enjoy the ease of a brand-new home with all the benefits of country life — move-in ready and waiting for you!
Property Features
- New construction home
- Custom walk-in shower
- 1-acre country setting
- Open-concept design
- Move-in ready home
- Near Hwy 5, Wasola MO
- Peaceful Ozark views
- Country Homes
- Home in Town
- Investment & Income
- Call Amanda (417) 256-1000