Property Details
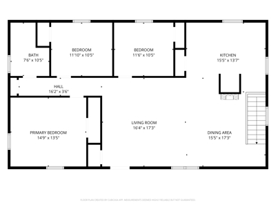
Discover the perfect blend of space, functionality, and country living with this beautifully updated 5-bedroom, 2-bath ranch-style home situated on 22.63 picturesque acres just 4 miles from West Plains, Missouri. Located on pavement and set back off the road, this property offers both convenience and privacy, complete with a pond, a nice patch of woods, and abundant wildlife including deer and turkey--often seen right around the pond. With approximately 2,912 square feet of living space, this home has been thoughtfully remodeled throughout and is designed with versatility in mind. Ideal for multi-generational living, rental income, or guest accommodations, the property features a fully finished walkout basement that serves as a complete second living area. Each level operates independently with separate systems, offering peace of mind and added efficiency. The main level includes three bedrooms, one bathroom, a spacious living room, dining area, and an additional den featuring a cozy fireplace. The country kitchen offers ample cabinetry, great counter space, and charming coffee bar shelving that will remain with the home. Washer and dryer hookups are conveniently located in the main level bathroom. The lower level, designed as a mother-in-law suite, includes its own kitchen, living room, dining area, two bedrooms, one bathroom, laundry room, and a separate entrance--making it ideal for extended family or income-producing potential. Numerous updates add value and efficiency, including a brand-new roof installed in May 2025, all new lighting throughout, a new propane water heater upstairs (2025), and updated systems including propane HVAC upstairs (2024) and electric HVAC downstairs (2025). Average utility costs are approximately $200 per month, making this home both comfortable and affordable. Outside, the acreage provides endless possibilities for recreation, hobby farming, or simply enjoying the peaceful Ozarks setting. The land features a pond, open
Property Features
- home near town
- home near west plains mo
- land with pond
- land with home
- Country Homes
- Home in Town
- Call Amanda (417) 256-1000
Property Amenities
- Fireplace
- Basement


